Serene Style
MARK CAYEN & KEVIN MULLEN
Empire Kitchen & Bath, Calgary Alberta
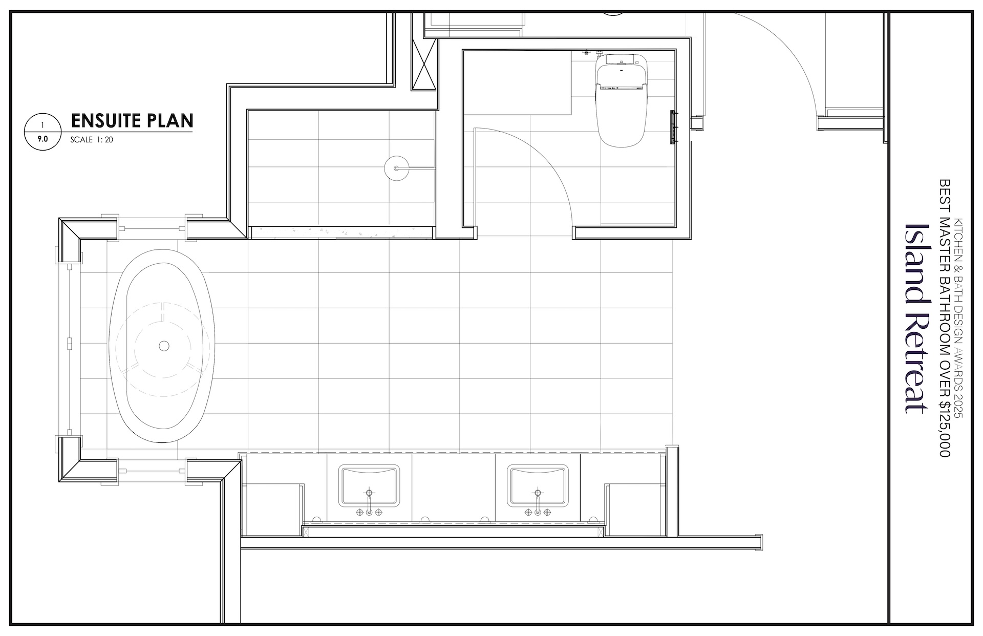
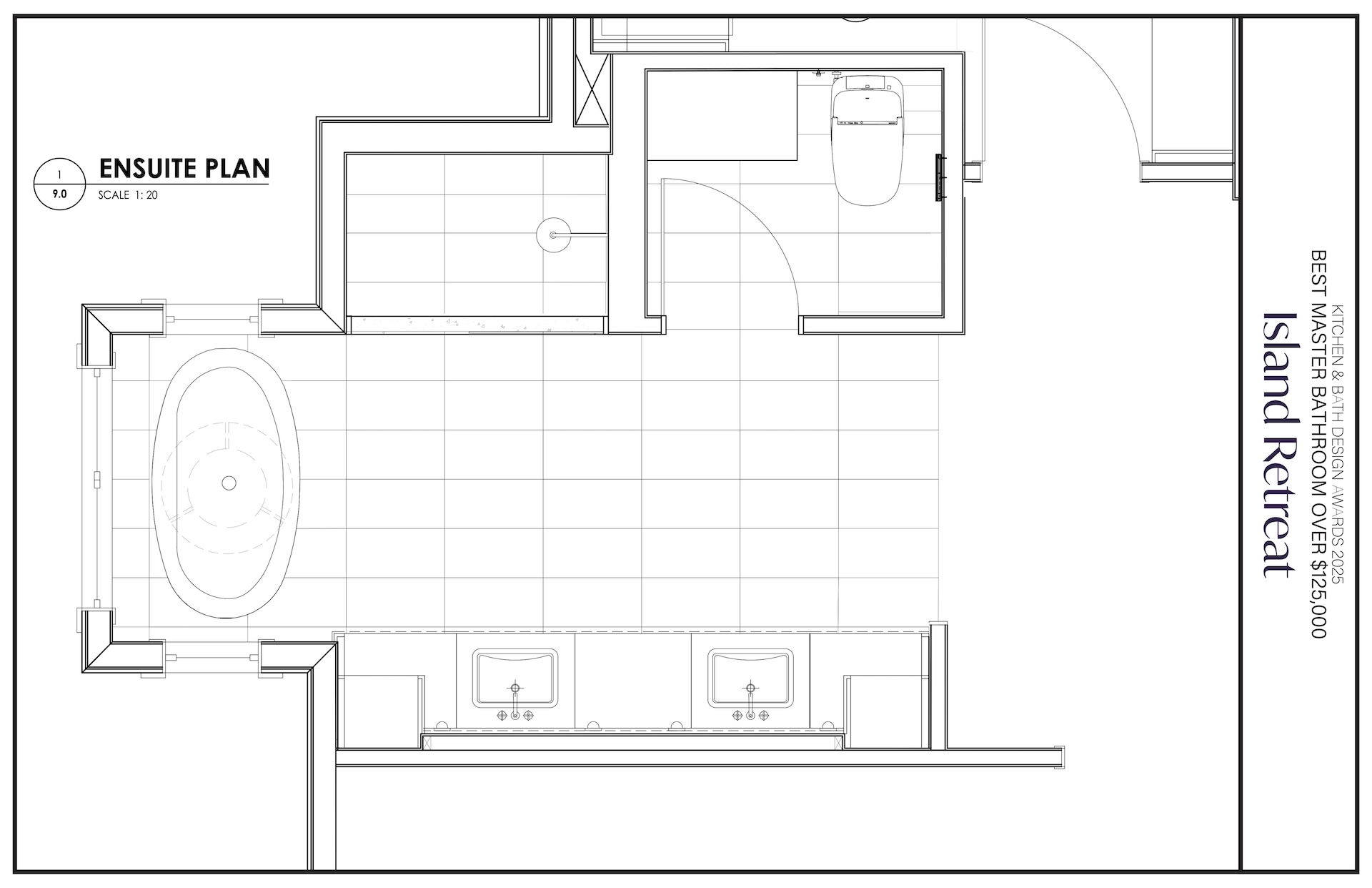
Framed by surrounding trees and infused with natural light, this home was designed to feel serene and connected to its island setting. A key objective of this project was to integrate a comprehensive five-piece ensuite, including a double vanity, oversized walk-in shower, enclosed water closet, and a tub alcove enveloped by windows. Achieving this level of detail and function within a narrow footprint presented one of the project’s greatest design challenges.
Working with co-designer Holly Ogden from Wiseman and Gale Interiors in Scottsdale, AZ, Mark Cayen and Kevin Mullen overcame the footprint challenges via a carefully planned linear layout: the symmetrical double vanity with Kohler Vitreous China sinks and Waterworks Foro Gooseneck faucets, paired with Urban Electric Benson Wall Sconces, line one wall, with an oversized shower featuring a Perrin & Rowe showerhead and Waterworks Foro hand shower, and enclosed water closet with a TOTO Neorest 700H toilet on the opposite wall. An elegant freestanding tub is positioned at the far end beneath large windows, with Visual Comfort’s Mollino Large Tiered Chandelier above.
To contrast the darker custom cabinetry with reeded doors, the designers selected elegant Frank Allart hardware along with lighter-toned wall finishes, natural stone and Fior Di Bosco 12″x24″ High Honed tile and Bianco Dolomiti Select 12″x24″ tile from Artistic Tile.
With each feature integrated seamlessly – from the frosted glass water closet door to the hidden toe-kick vent – the result is a master ensuite that meets every design demand with elegance and precision.




