Primary Suite Updates
MARK PETERSON
MA Peterson Design Build, Edina, MN
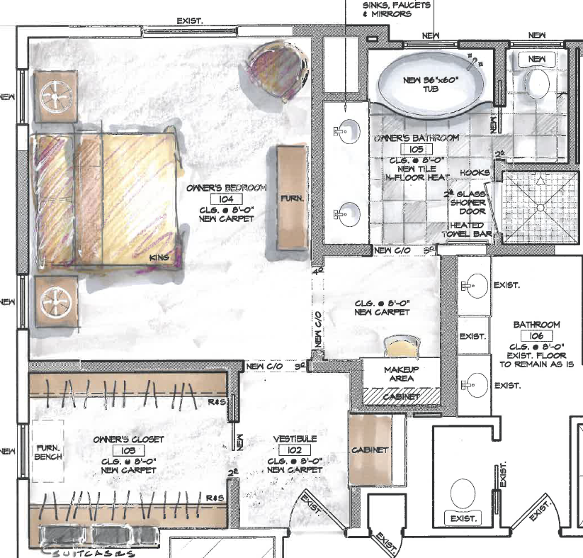
This primary suite, which included the bedroom and bathroom, needed an update that resulted in a more functional, comfortable and personalized retreat with maximum storage. A small addition was added to the bedroom to expand the space and allow for a reading nook with built-in shelving. A wall-integrated linen closet and additional built-in cabinetry near the closet eliminated the need for a dresser and made the room feel more spacious.
In the bathroom, the goals were to improve layout and storage while maintaining a clean design. The original footprint was functional but slightly too small for the new shower design, so it was expanded just enough to accommodate a walk-in shower with a built-in bench. The shower walls and ceiling feature Sonoma Tilemakers Pure Subway tiles, while the shower floor is Carrara marble tile in a basketweave mosaic. Kohler shower fixtures in Vibrant Polished Nickel and Polished Nickel add shine and function.
A pull-out shelf was discreetly added for hidden storage, and a dedicated makeup vanity area was created for daily use.
The bath vanity includes a Kohler Devonshire white sink, Perrin and Rowe Georgian Era wall-mount widespread faucet and MSI Q Quartz surface in Calacatta Miraggio. Built-in shelves were integrated on either side of the vanity to keep daily essentials within reach. Hudson Valley Bristol Sconces in Aged Brass provide illumination.









