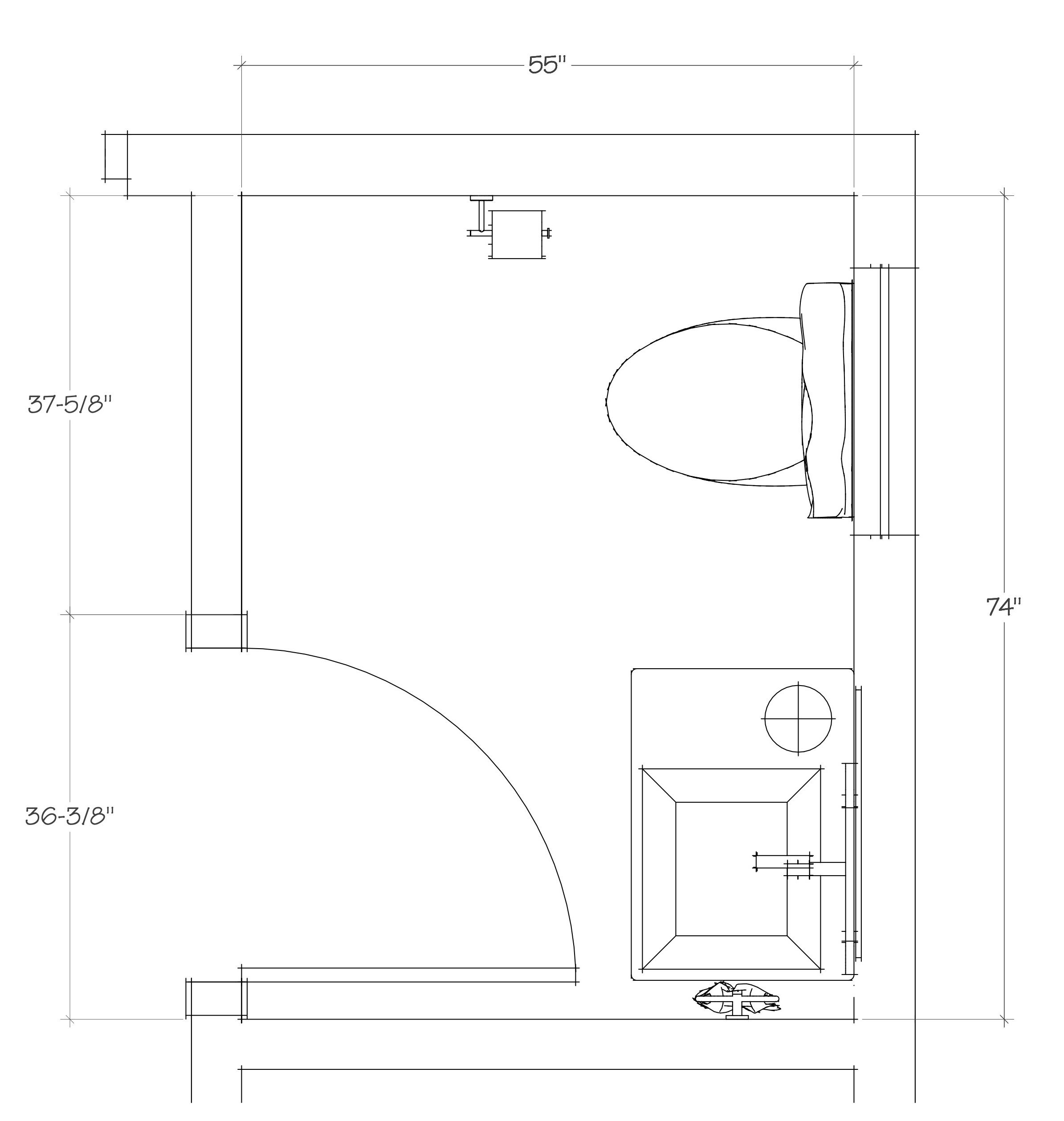
This chic and moody powder bath delivers a precision punch in a mere 35 square feet. For Tristan Gary, in collaboration with Jinny Park Architecture, delivering a curated feel within the monochrome palette was paramount.
A Thompson Traders Escondido basin paired with Palmer legs and a wall-mounted Brizo faucet allows the exposed plumbing to make a design statement. The natural marble backsplash and grasscloth wallpaper provides a quietly glamorous backdrop.