Multi-Functional Mudroom
JULIE NOVY
JWN Designs, Crystal Lake, IL
ANN STOCKARD
O’Brien Harris, Chicago, IL
This elegant home, located on Crystal Lake in Illinois, needed a mud room with laundry area that could serve family and frequent guests in style. Designer Ann Stockard worked with Julie Novy of JWN Designs to create this highly functional and sophisticated space, which features custom details and curated finishes that meet the design sensibility carried throughout the home.
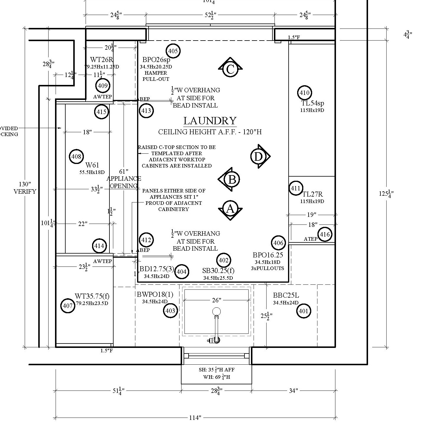
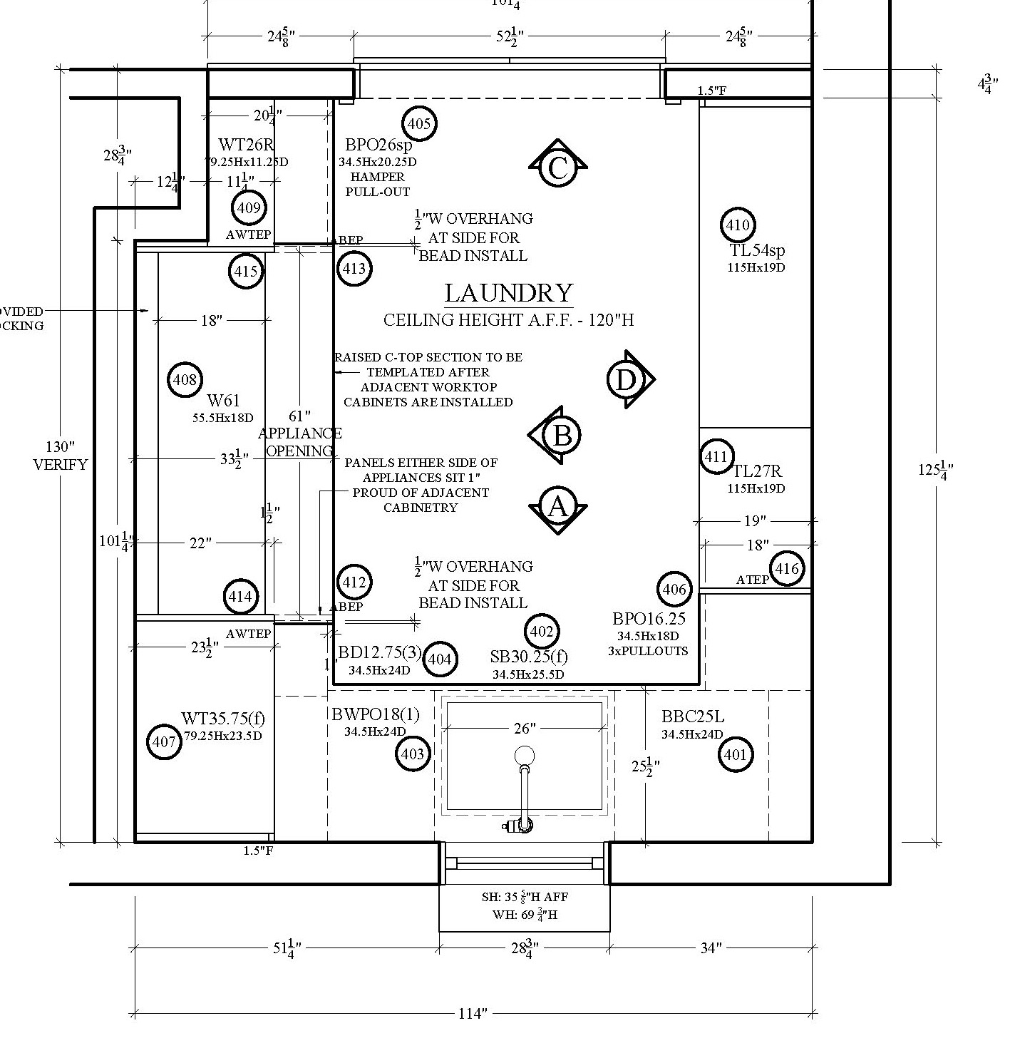
Careful space planning divided the small, 110-sq.-ft. room into two highly efficient zones: a mudroom on the left with generous storage for coats, shoes and sports gear, and a laundry area on the right featuring hamper pullouts, sorting bins, and durable Pure White quartz countertop from Caesarstone for folding and prep. In addition to the quartz surfacing, the team selected other resilient, high-end materials such as custom cabinetry and a striped penny round floor tile from Ann Sacks in a custom pattern – all chosen to withstand daily wear while maintaining visual appeal.
Completing the space is Katonah polished nickel hardware, washer and dryer from LG Electronics, and Visual Comfort Boston Functional Single Arm Library Light in polished nickel with Presidio Classics shades. Positioned under the window is a sink from Mr. Sink and faucet from Delta Faucet to aid with laundry and cleanup.
One of the key challenges was ensuring the space could be closed off during gatherings without sacrificing beauty or disrupting the home’s flow. Elegant custom barn doors from O’Brien Harris with polished nickel grill inserts from Armac Martin were designed to hide the room when needed.



