Timeless Appeal
MARISSA MATIYASIC & KATIE TUMINO
Reflections Interior Design, Oakwood Village, OH
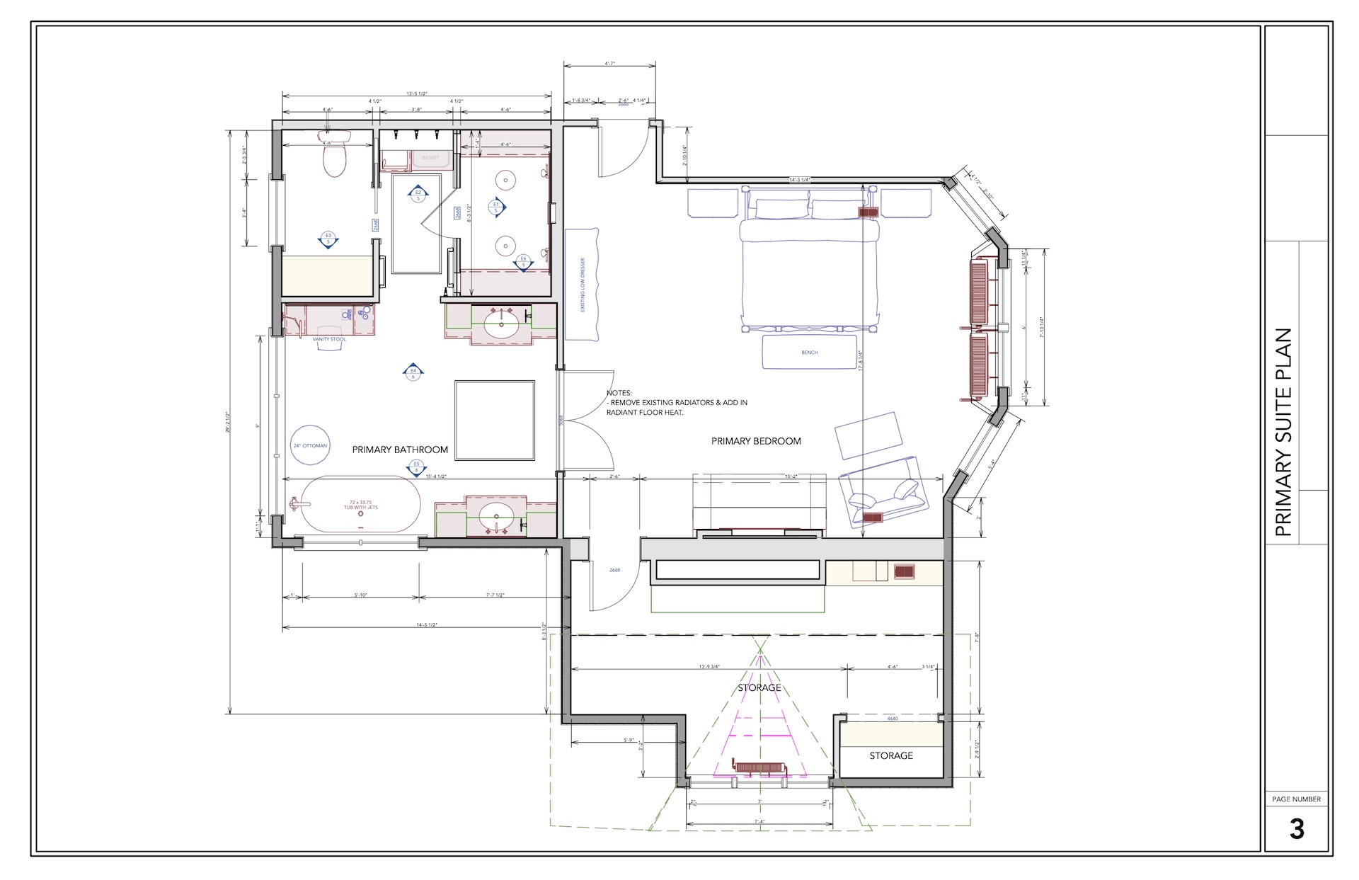
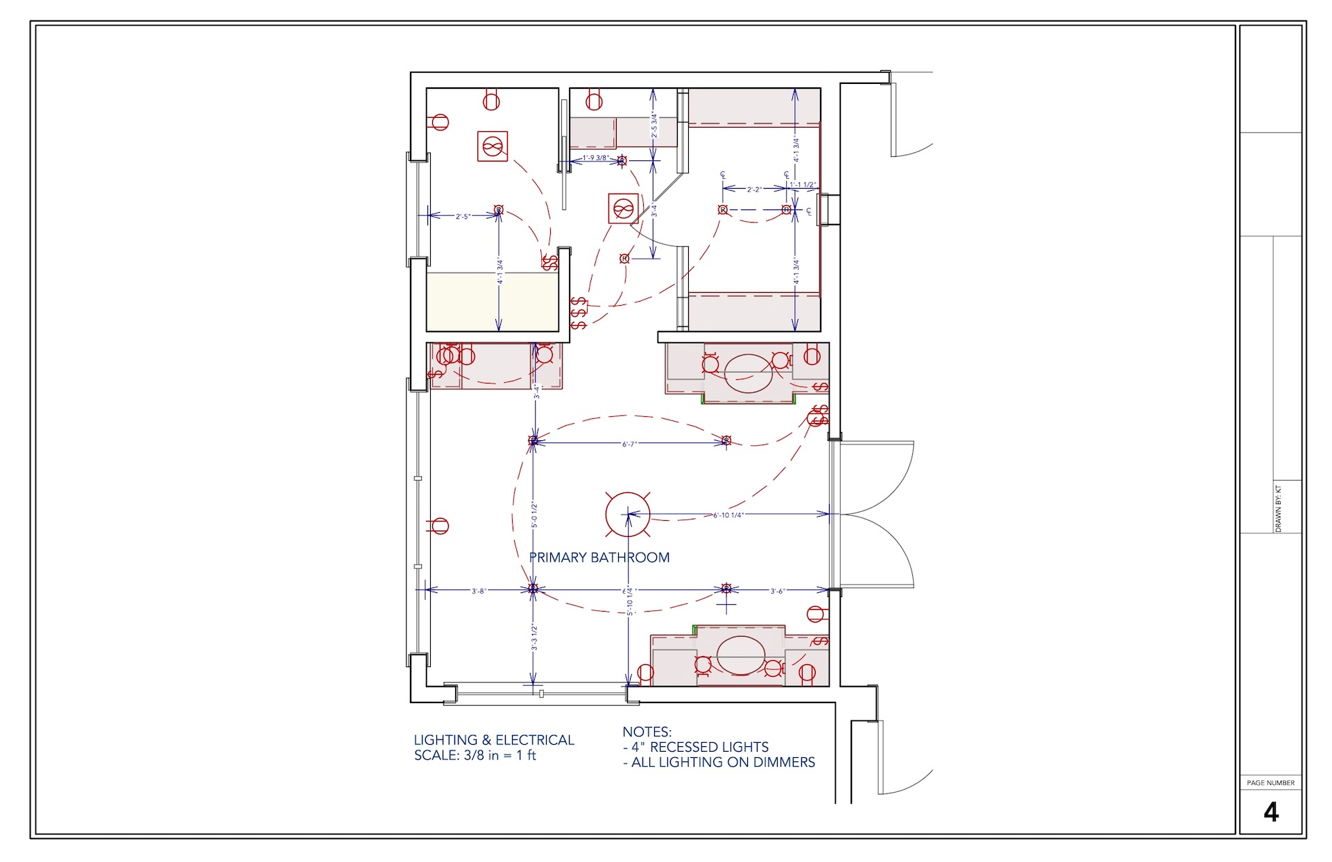
The main objective of this Shaker Heights, OH, project was to provide this family of five with an expanded primary bathroom that was both elegant and functional. To achieve this, Marissa Matiyasic and Katie Tumino reconfigured the layout by incorporating an underutilized sitting room off the primary bedroom. This allowed them to create a spacious, multifunctional bathroom.
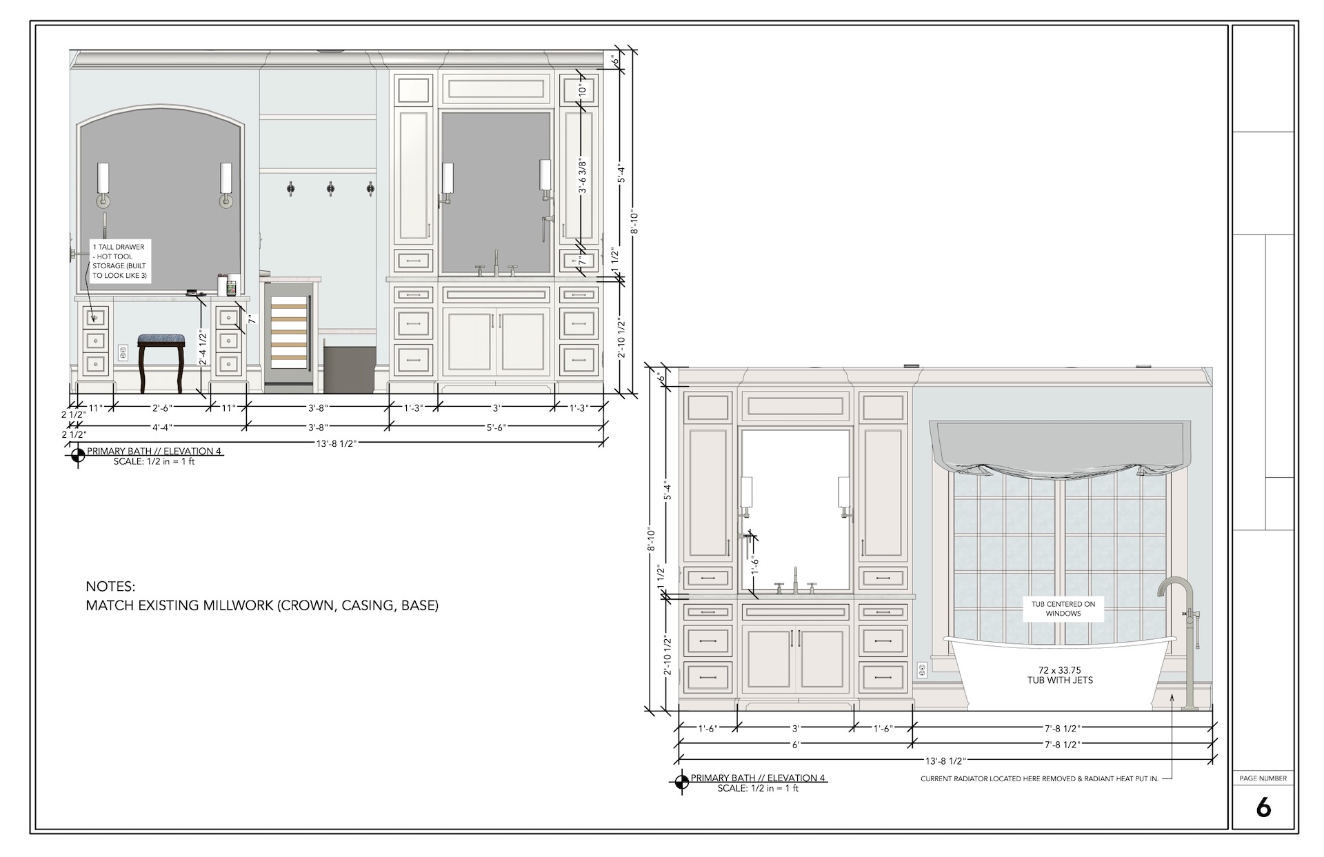
They installed a large two-person shower wrapped in Akdo Carrara Bella tiles that featured separate shower zones and individual benches, complete with Brizo Invari showerhead and handshower and Infinity Drain linear drain with tile inset. A private enclosed water closet with a TOTO Promenade II toilet was added, as was a Victoria + Albert Worcester freestanding soaking tub with Brizo Invari tub filler.
Generously sized his-and-hers vanities with Cambria Ella Quartz countertops and Kohler Devonshire sinks and each equipped with dedicated storage towers were included as was a dedicated makeup vanity area. Kent Pulls and Barrow Knobs from Top Knobs adorn the furniture, while accessories from Emtek and Signature Hardware finish the space, creating a cohesive, timeless result.















