Wood Wonderland
SOLLID CABINETRY
Chandler, AZ
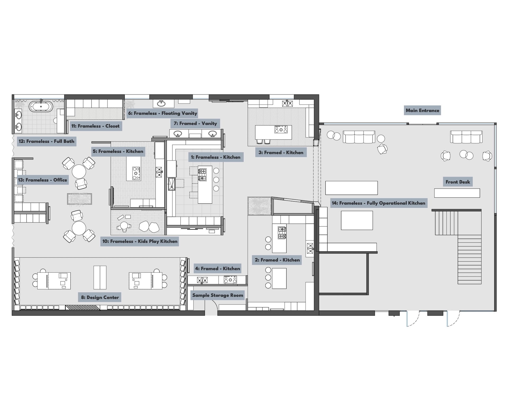
The goal for the design of Sollid Cabinetry’s new showroom was to deliver a one-stop collaborative space for homeowners and dealers to interact with and experience a wide variety of cabinetry styles and hardware options, especially when in conversation with other design elements such as lighting and countertops. A secondary goal was to showcase the beauty of wood and how it might change based on the door style, stain or paint color.
The development of the showroom encountered some hurdles – largely due to the industry’s supply chain and labor fallout from COVID-19 – necessitating a reduction in the project scope from 7,000 square feet to a far more manageable 3,500 square feet (the remaining 3,500 will be part of an upcoming second phase incorporating even newer products and trends). Through close collaboration with dealers and vendors, Sollid Cabinetry was able to craft engaging custom vignettes and showcase its wide range of cabinetry products, as well as brands including Della Terra Quartz, Rev-A-Shelf interior fittings, Emtek hardware, Brizo faucets and more.
A fun additional feature of the showroom is the fully stocked Children’s Play Kitchen, which provides kids a safe and fun activity center, enabling parents to focus on collaborating with designers and staff.

















