A Place to Gather
ROB BUSCH
drawing dept, Cincinnati, OH
At over 50 years old, this poorly built and maintained suburban home needed an overhaul so it could better accommodate a family of five, along with their dog and frequent extended-stay family and guests. The clients also wanted to be able to cook together as a family and host large festive gatherings around a meal, both of which are culturally significant to their Puerto Rican heritage.
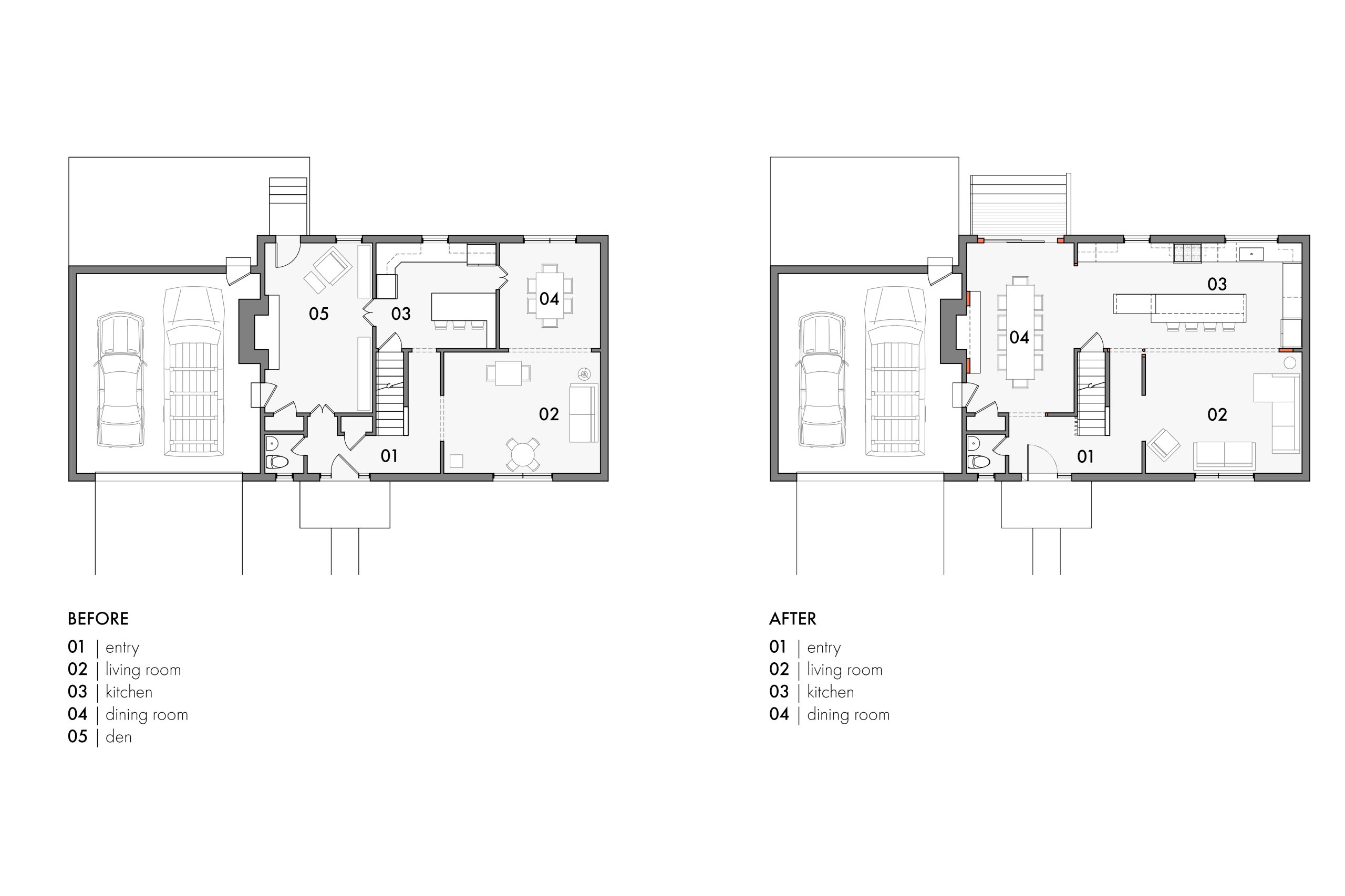
Since an addition was not financially feasible, existing spaces were consolidated and interior walls were removed, including the central loadbearing wall, which was replaced by an exposed column and beam that are now celebrated as key design elements. The once fragmented floor plan is completely open and the isolated kitchen is now visible to both the adjacent dining room and living room.
The kitchen features a distinctive work zone defined by the large island that welcomes guests and serves as the centerpiece – and bar! – for every gathering. An all-white interior amplifies the sense of spaciousness and brightness as spaces flow one from another, showcasing the homeowners’ colorful artwork. Wood and steel detailing are judiciously integrated to add warmth and personality.
While the majority of the cabinets are white with a clean, flat-panel door style, shelving, inserts and island prep area punctuate the space with rich wood tones. Along the back wall, a Bosch Dual Fuel Range is situated between two windows, paired with a Futuro Lombardy Black Wall Range Hood. A Bosch dishwasher and Marvel Undercounter Beverage Center are also featured along this expanse. The kitchen also incorporates a speed oven, microwave, warming drawer and refrigerator/freezer, all from Bosch.









