Rethinking a Tight Space
PAULINA HOSPOD & ALBERT RUTKOWSKI
AhA!nteriors, Middle Village, NY
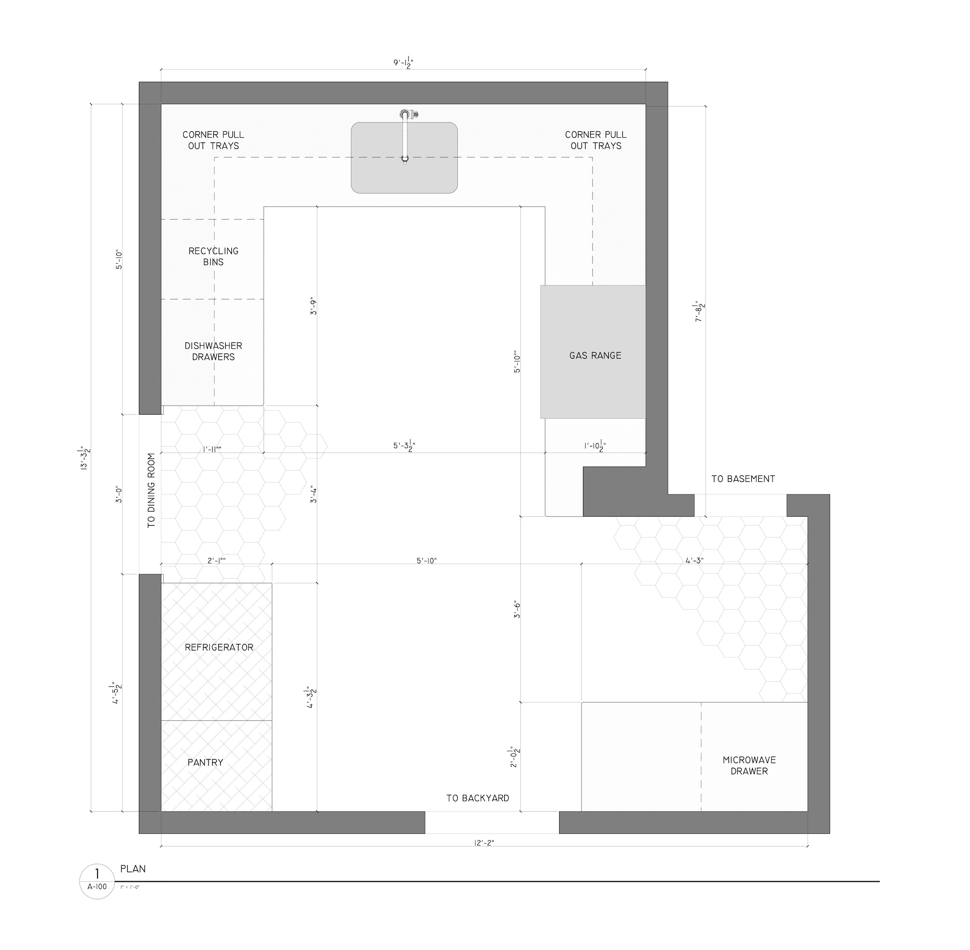
These clients wanted to transform their dated and inefficient kitchen into a refreshed functional space that embraces modern conveniences while honoring the historic charm of the Victorian home. Working within the original, relatively limited 140-sq.-ft. space proved to be a challenge, as were the landmark restrictions that required the backyard door and windows remain in their original locations.
The clients wanted to maximize countertop space so the wall ovens were replaced by an ILVE range, paired with an ILVE Majestic range hood. This change made room for a Wolf microwave drawer, which preserves valuable work surface by eliminating the need for an over-the-counter unit. To further improve functionality, the Elkay sink/Waterworks faucet combo and range swapped locations, allowing for better use of the corner areas, which are now outfitted with pullout trays that add efficient and accessible storage.
The Miele refrigerator was built into cabinetry panels so it blends seamlessly with the kitchen design while minimizing how far it projects beyond the custom AhA!nteriors cabinetry. Instead of a dishwasher with a traditional drop-down door, Fisher & Paykel drawer-style dishwashers were installed. These not only make better use of the tight space, but they also allow for splitting loads, which offers greater flexibility for everyday use.
Brass accents, including the Rejuvenation cabinetry hardware and range knobs, add warmth and elegance. Hexagon-shaped Ann Sacks floor tiles nod to traditional farmhouse kitchens, while an Alleanza quartz countertop in Dove White pairs seamlessly with a hand-selected Calacatta Monet marble backsplash to create a striking focal point behind the range. The remaining backsplash provides a more neutral setting, adorned with Cadence Chalk tile from Nemo Tile & Stone.









