Statement Space
HOUSE OF L DESIGNS
Cleveland, OH
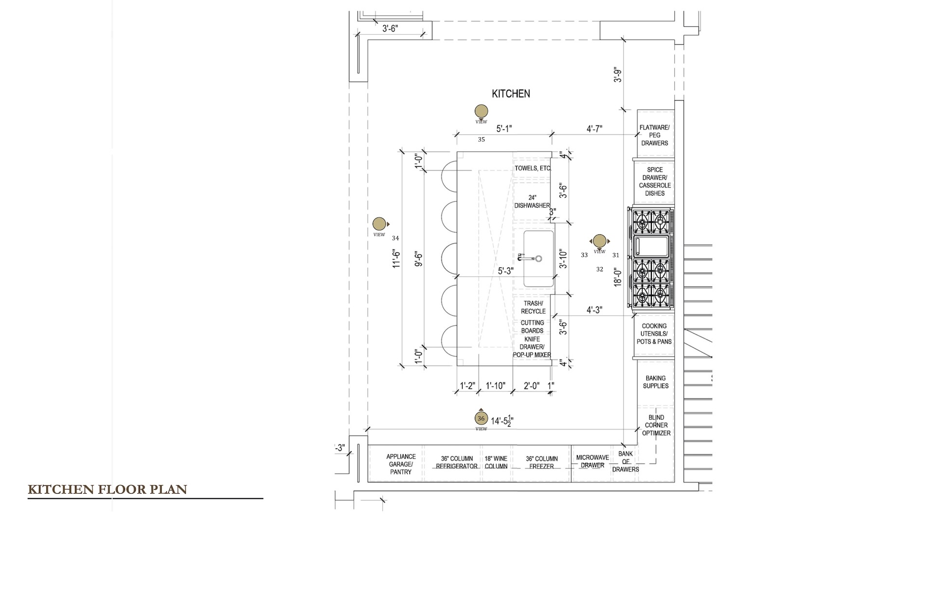
Part of a new-build estate, this statement kitchen was designed to balance functionality with high-end visual impact, and needed to serve both everyday family life and elevated entertaining. The layout was created to provide ample prep space, intuitive storage and top-tier appliances while integrating design elements that reflected client’s refined yet inviting style, notes House of L Designs.
Bespoke cabinetry, which was customized to maximize vertical storage, is featured in white and warm oak tones along the perimeter of the room. An appliance garage, corner baking center and glass-front cabinets add to the functionality and enhance the room’s overall aesthetic. Cabinet hardware from Alno’s Millennium Collection is featured in satin brass.
At the center of the back wall, an oversized custom hood with Best blower is adorned with a gold mantel that coordinates with the custom metal framed glass shelves on each side from Architectural Justice. Below, a 66″ Viking Tuscany Range in Arctic Grey is flanked by flatware/peg drawer and paired with a Waterstone pot filler in Satin Brass. Making a dramatic statement is the full-height natural stone backsplash that encases the entire wall. The kitchen also includes a Wolf Transitional Microwave Drawer, 36″ refrigerator and 36″ freezer, as well as an 18″ wine column, all from Sub-Zero.
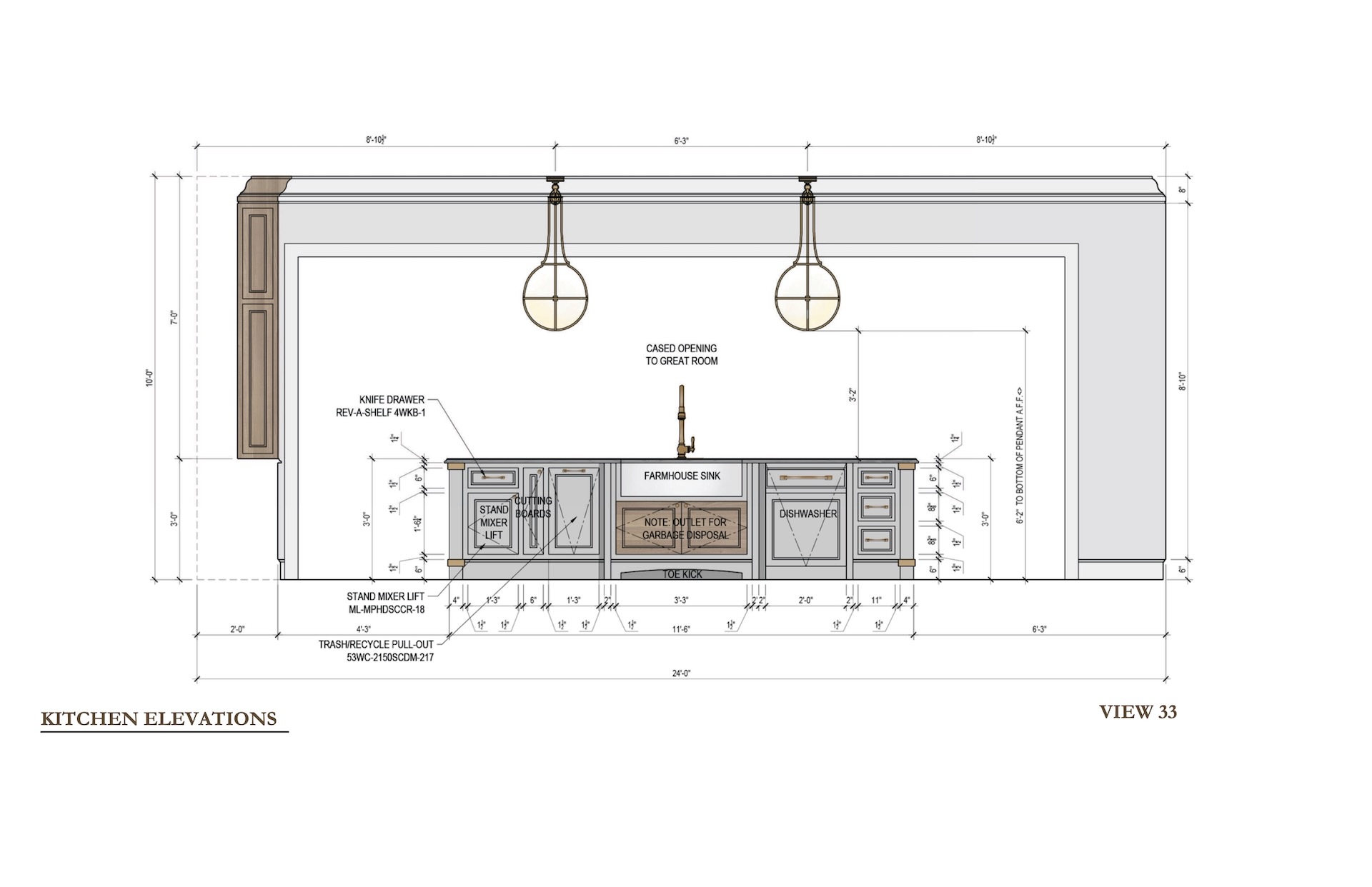
A large central island was designed to anchor the space, providing ample storage and seating. It includes a trash recycle center, spice insert, cutting boards, knife drawer and pop-up mixer, all from Rev-A-Shelf. A Blanco PROFINA farmhouse sink in Fireclay White is paired with a Waterstone pull-down faucet in satin brass in the island, with Cove dishwasher situated beside them. Two pendant lights from Visual Comfort add drama.













