The Multipurpose Space
LAURA O’BRIEN
O’Brien Harris, Chicago, IL
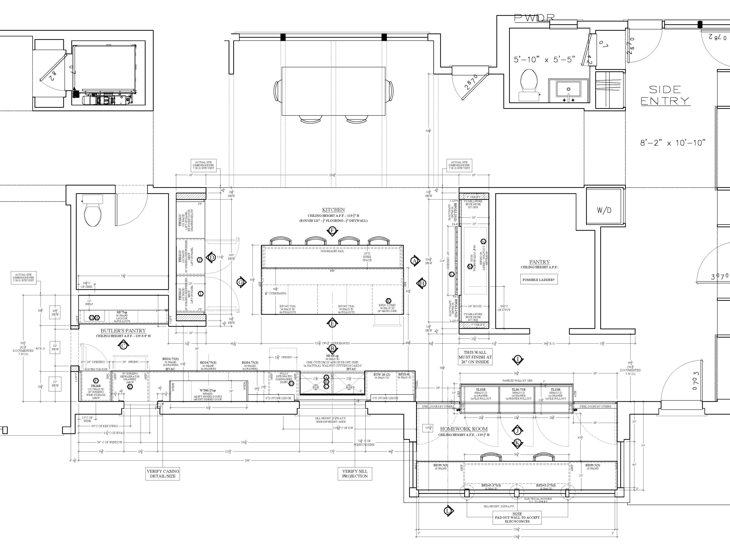
Laura O’Brien’s clients use their kitchen space for a multitude of activities and requested a multi-functional layout that integrated a family kitchen, breakfast room, homework area, mudroom and wet bar. While the 390-sq.-ft. room provided ample space, one of the challenges was to keep it from feeling cavernous, instead making it warm and inviting.
Storage was a priority for the clients, and the design team also wanted to avoid visual clutter. Clean-lined custom base cabinetry in light quarter-sawn London Oak sets the tone for a streamlined aesthetic, with upper cabinets minimized to allow the architecture to breathe. Beneath the window, a specially designed double workstation sink is paired with a Brizo faucet. A countertop and backsplash of Calia Stone’s Calacutta Lincoln quartz continues down the run of cabinets, which also includes a Cove dishwasher as well as a Sub-Zero refrigerator drawer and undercounter wine unit.
Included on the adjacent wall is a Wolf professional range, topped with a custom blackened steel hood with Wolf insert. Opposite, a paneled Sub-Zero refrigerator and freezer continue the streamlined aesthetic.
Rather than incorporating two islands, the designers opted to extend a table-height surface from the main island. The main portion of the island is a dark stained walnut, with a Wolf microwave, topped with a Dove Grey leathered quartz surface from Corian. The eating portion of the island includes the Calia Stone Calacutta Lincoln quartz used on the perimeter, showcasing a waterfall edge. The entire space also incorporates hardware from Sun Valley Bronze and Nest Studio. Above the island, custom metal brackets were designed to extend from the exposed beams, allowing pendant lights to be suspended gracefully over the space without interrupting sightlines.







